売買物件property for sale

【2025年8月完成!】新築平家

130345_0130339_0130342_0174919323637317491932177722886_02872_02876_02880_02889_02891_02895_0
130345_0
130339_0
130342_0
1749193236373
1749193217772
2886_0
2872_0
2876_0
2880_0
2889_0
2891_0
2895_0

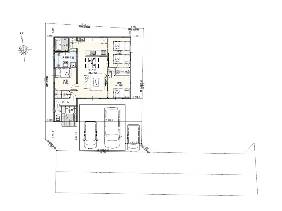
人気の平屋建です!幅広い年代におすすめの物件です!スーパーやコンビニが近く、とても便利です!

種別 戸建
価格 2,560万円(税込)
所在地 山形県天童市柏木町二丁目
交通 JR奥羽本線天童駅から徒歩16分
建物面積 709㎡ (21.17坪)
土地面積 200㎡ (60.5坪)
間取り 3LDK
築年月 2025/8
設備・特徴 システムキッチン、上下水道あり、洗面化粧台、洗浄機付トイレ、TVモニター付ドアホン、エアコン、追い焚き、パントリー、駐車場3台
戸数 1戸
建ぺい率 60%
容積率 200%
用途地域 1種中高層
地目 宅地
引渡時期 相談
道路 東4.4m
敷地の権利 所有権
階層 平屋
取引態様 売主
学区 中部小/天童四中
駐車場 3台
備考 ・建築確認(第R05建築確認山形天童00124号)
・共有道路(119.92㎡)の持ち分2/5を所有いただきます。代金は売買代金に含まれております。

お問い合わせcontact us

土地・建物・アパートなど

不動産のことなら
何でもご相談ください

LINEアプリで弊社をお友達追加していただくと、当社から最新の物件情報をいち早くお届けいたします

メールでのお問い合わせは下記より入力ください